Neubau der Binnensee-Südpromenade, Stadt Heiligenhafen
- Auftraggeber
-
SILLER Landschaftsarchitekten
- Leistungsumfang
-
LPH 5 und 7, örtliche Bauüberwachung gem. HOAI
- Wichtige Daten
-
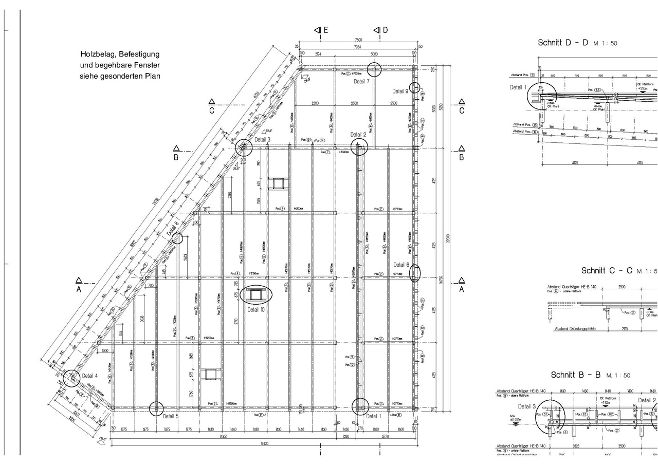
60 m Stahlspundwand 5,0 m Länge mit Holmabdeckung in U-Form
6 Plattformen mit 180 St Stahlpfähle Ø 220 mm mit
4 – 10 m Länge
8 St Dalbenpfähle Ø 500 mm mit 9 – 15 m Länge
100 t Stahlkonstruktion
1.750 Holzbohlenbelag, Eiche
2 Schwimmstege 2,4 x 16,0 m