Ersatzneubau Sporthalle Rövershagen
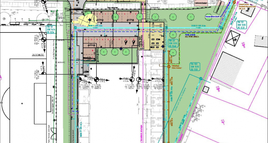
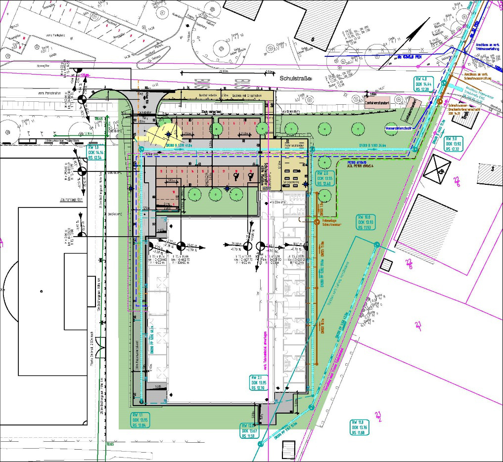
Das Projekt beinhaltet sowohl die Errichtung einer Baustraße, deren Unterbau für die endgültige Zufahrt und die Stellflächen weitergenutzt wurde und die Anbindung an das örtliche Ver- und Entsorgungsnetz.
- Auftraggeber
-
Amt Rostocker Heide
- Leistungsumfang
-
LPH 2 - 9 gem. HOAI
- Wichtige Daten
-
200 m² Feuerwehrzufahrt
700 m² Pflaster/Platten
500 m² RW Leitungen DN 200 - 500